Добро пожаловать на http://vipplan.ru

Випплан Большой Камень - это тысячи проектов домов в нашем каталоге!

Вы всегда сможете найти для себя проект дома вашей мечты! Даже если этого не случилось, мы готовы в любую минуту предложить проект индивидуального дома.

Забыли пароль?
Вы еще не регистрировались?

Перейдите по ссылке ниже на страницу регистрации.

Регистрация...

Внимание!!!

В проектную документацию могут быть внесены изменения любой сложности, в соответствии в Вашими пожеланиями!

Полезные статьи

Установка систем вентиляции

Проектирование и установка систем вентиляции начинается на этапе создания проекта дома, в котором, наряду с газо- и электрификацией, водоснабжением и системой канализации, проектируется система вентиляции...

Выбор проекта дома (площадь, этажность - 1 или 2 этажа)

Для того что бы выбрать проект дома, предварительно необходимо определиться, какой будет площадь будущего дома (решение зависит от количества человек, планирующих постоянно в нем проживать), количество спален, санузлов и ванных комнат, компоновка дома, одноэтажный, масардный или двухэтажный дом (зависит от площади участка и предпочтений будущих хозяев) ...

Проекты домов и коттеджей > Каталог проектов домов > Двухэтажный дом с кухней-гостиной, большим балконом, четыремя спальнями и вторым светом Vg3742

Двухэтажный дом с кухней-гостиной, большим балконом, четыремя спальнями и вторым светом Vg3742

Двухэтажный дом с кухней-гостиной, большим балконом, четыремя спальнями и вторым светом
Зарегистрируйтесь

Проект № Vg3742


Техническое описание
Общая площадь: 227.45 м2
Жилая площадь: 95.22 м2
Высота здания: 9.41 м
Размеры дома: 14.54м×19.29м
Кол-во комнат: 5
Цокольный этаж: нет
Гараж: нет
Мансарда: нет

Kонструкция
Фундамент: монолитная плита
Перекрытия: монолитные, деревянные балки
Материал стен: material_mon

Архитектурный раздел
Конструктивный раздел
АР+КР - 64 000 (Со скидкой 20%)
Двухэтажный дом с кухней-гостиной, большим балконом, четыремя спальнями и вторым светом с габаритами 14,54 x 19,29 м. Наружная отделка здания – штукатурка. Фундамент - монолитная ж/б плита под всей площадью дома (мелкозаглубленная). Наружные стены – газобетонные блоки с отделкой штукатуркой. Внутренние стены - газобетонные блоки. Перегородки - газобетонные блоки. Пол 1 этажа - пол по монолитной плите фундамента. Межэтажное перекрытие - монолитная ж/б плита. Крыша - многоскатная. Кровля - металлочерепица. Окна — металлопластиковые
Генплан застройки участка / Паспорт проекта 7000 руб / 10000 руб
Инженерный раздел (полный) 113500 руб
Смета на строительство 56750 руб
Теплотехнический расчет материалов стен Бесплатно
Стоимость проекта со незначительнми изменениями 74300 руб
Стоимость проекта со средними изменениями* 91400 руб
Стоимость проекта со значительными изменениями** 95900 руб

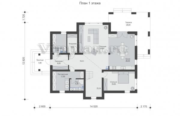
План первого этажа


Прихожая - 6,50 м2
Бойлерная - 7,24 м2
Кладовая - 5,20 м2
Гостиная - 30,67 м2
Кухня - 26,00 м2
Спальня - 16,63 м2
Холл - 15,14 м2
С/у - 4,39 м2
Постирочная - 11,62 м2

Двухэтажный дом с кухней-гостиной, большим балконом, четыремя спальнями и вторым светом

Двухэтажный дом с кухней-гостиной, большим балконом, четыремя спальнями и вторым светом

План второго этажа


Холл - 20,26 м2
Спальня - 16,35 м2
С/у - 6,50 м2
Спальня - 12,47 м2
Спальня - 19,10 м2
Гардероб - 7,48 м2
Ванная - 12,91 м2
Двухэтажный дом с кухней-гостиной, большим балконом, четыремя спальнями и вторым светом Двухэтажный дом с кухней-гостиной, большим балконом, четыремя спальнями и вторым светом Двухэтажный дом с кухней-гостиной, большим балконом, четыремя спальнями и вторым светом Двухэтажный дом с кухней-гостиной, большим балконом, четыремя спальнями и вторым светом

Модификации проектов

Внесение изменений и привязка к участку строительства

В любой из проектов от компании VIPplan - Большой Камень по вашему желанию могут быть внесены изменения в материалы стен, материалы наружной отделки дома, а также будет произведена адаптация проекта под конкретный регион строительства (с учетом грунтов региона, геологических особенностей вашего участка и местных климатических условий) - БЕСПЛАТНО !!! (кроме проектов со скидкой и проектов наших партнеров).

Любой из проектов, размещенных на сайте bolshoy-kamen.vipplan.ru мы можем выполнить из требуемых вам строительных материалов: ячеистый бетон (газобетон, пеноблок), керамоблок, кирпич, шлакоблок, бетонный блок, дерево (брус, клееный брус), каркасная технология (деревянный каркас, металлокаркас (ЛСТК)).

Фасад дома и его наружную отделку так же возможно выполнить с применением различных облицовочных материалов: структурной штукатурки, (с утеплителем и без), сайдингом (пластиковый или металлосайдинг), фиброплитами, кирпича.

 
6 Избранные
проекты

Доставка проектов по России: Москва (Московская область), Санкт-Петербург (Ленинградская область), Краснодар, Ростов-на-Дону, Ставрополь, Сочи, Волгоград, Новосибирск, Белгород, Брянск, Воронеж, Саратов, Хабаровск, Астрахань, Нальчик, Владикавказ, Екатеринбург, Тюмень, Самара, Нижний Новгород, Казань, Пермь, Уфа, Челябинск, Красноярск, Ханты-Мансийск, Иркутск, Курган, Оренбург, Омск, Томск, Барнаул, Новокузнецк, Кемерово, Абакан, Чита, Якутск, Южно-Сахалинск, Петропавловск-Камчатский и страны ближнего зарубежья: Белоруссия, Украина, Казахстан