Добро пожаловать на http://vipplan.ru

Випплан Большой Камень - это тысячи проектов домов в нашем каталоге!

Вы всегда сможете найти для себя проект дома вашей мечты! Даже если этого не случилось, мы готовы в любую минуту предложить проект индивидуального дома.

Забыли пароль?
Вы еще не регистрировались?

Перейдите по ссылке ниже на страницу регистрации.

Регистрация...

Внимание!!!

В проектную документацию могут быть внесены изменения любой сложности, в соответствии в Вашими пожеланиями!

Полезные статьи

Купить готовый проект дома или заказать индивидуальный?

Перед началом строительства дома возникает необходимость в проекте дома и тут встает вопрос: Купить готовый проект дома или заказать индивидуальный на заказ? Каждый из вариантов по своему хорош и имеет как свои плюсы так и минусы...

Установка систем вентиляции

Проектирование и установка систем вентиляции начинается на этапе создания проекта дома, в котором, наряду с газо- и электрификацией, водоснабжением и системой канализации, проектируется система вентиляции...

Проекты домов и коттеджей > Каталог проектов домов > Проект оригинального одноэтажного дома с гаражом Vg1471

Проект оригинального одноэтажного дома с гаражом Vg1471

Проект оригинального одноэтажного дома с гаражом
Зарегистрируйтесь

Проект № Vg1471


Техническое описание
Общая площадь: 184.75 м2
Жилая площадь: 81 м2
Высота здания: 7 м
Размеры дома: 18.94м×16.02м
Цокольный этаж: нет
Гараж: нет
Мансарда: нет

Kонструкция
Фундамент: Буронабивной
Перекрытия: Деревянные
Материал стен: Газобетон

Архитектурный раздел
Конструктивный раздел
АР+КР - 60 000 (Со скидкой 20%)
Проект индивидуального одноэтажного жилого дома с размерами здания 18,94 x 16,02 м. Наружная отделка здания - фасадная штукатурка/отделка камнем. Цоколь - отделка камнем. Фундамент - свайно-ростверковый (буронабивной). Ростверк - монолитный, ж/б. Наружные стены дома: газобетонные блоки "Ytong". Отделка фасада фасадной штукатуркой/камнем.. Внутренние стены - газобетонные блоки "Ytong". Перегородки - газобетонные блоки "Ytong" . Пол - пол по грунту. Чердачное перекрытие - по деревянным балкам с использованием теплошумоизоляционных материалов типа "URSA" в межбалочном пространстве. Отделка вентканала -штукатурка. Крыша - многоскатая. Материал кровли - металлочерепица. Перемычки - "Ytong". Окна - металлопластиковые, выполнить по индивидуальному заказу.
Генплан застройки участка / Паспорт проекта 7000 руб / 10000 руб
Инженерный раздел (полный) 92500 руб
Смета на строительство 46250 руб
Теплотехнический расчет материалов стен Бесплатно
Стоимость проекта со незначительнми изменениями 70350 руб
Стоимость проекта со средними изменениями* 84300 руб
Стоимость проекта со значительными изменениями** 88000 руб

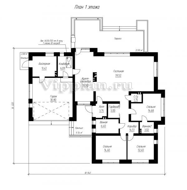
План первого этажа


Гараж - 30,80 м2
Бойлерная - 9,42 м2
Кладовая - 6,09 м2
Крыльцо - 9,76 м2
Холл - 3,75 м2
С/у - 1,75 м2
Гардероб - 3,00 м2
Кухня-столовая - 18,92 м2
Гостиная - 39,52 м2
Терраса - 31,99 м2
Спальня - 14,68 м2
Ванная - 6,40 м2
Ванная 2 - 3,02 м2
Коридор - 14,51 м2
Спальня - 12,40 м2
Спальня - 14,40 м2
Проект оригинального одноэтажного дома с гаражом Проект оригинального одноэтажного дома с гаражом Проект оригинального одноэтажного дома с гаражом Проект оригинального одноэтажного дома с гаражом

Модификации проектов

Внесение изменений и привязка к участку строительства

В любой из проектов от компании VIPplan - Большой Камень по вашему желанию могут быть внесены изменения в материалы стен, материалы наружной отделки дома, а также будет произведена адаптация проекта под конкретный регион строительства (с учетом грунтов региона, геологических особенностей вашего участка и местных климатических условий) - БЕСПЛАТНО !!! (кроме проектов со скидкой и проектов наших партнеров).

Любой из проектов, размещенных на сайте bolshoy-kamen.vipplan.ru мы можем выполнить из требуемых вам строительных материалов: ячеистый бетон (газобетон, пеноблок), керамоблок, кирпич, шлакоблок, бетонный блок, дерево (брус, клееный брус), каркасная технология (деревянный каркас, металлокаркас (ЛСТК)).

Фасад дома и его наружную отделку так же возможно выполнить с применением различных облицовочных материалов: структурной штукатурки, (с утеплителем и без), сайдингом (пластиковый или металлосайдинг), фиброплитами, кирпича.

 
6 Избранные
проекты

Доставка проектов по России: Москва (Московская область), Санкт-Петербург (Ленинградская область), Краснодар, Ростов-на-Дону, Ставрополь, Сочи, Волгоград, Новосибирск, Белгород, Брянск, Воронеж, Саратов, Хабаровск, Астрахань, Нальчик, Владикавказ, Екатеринбург, Тюмень, Самара, Нижний Новгород, Казань, Пермь, Уфа, Челябинск, Красноярск, Ханты-Мансийск, Иркутск, Курган, Оренбург, Омск, Томск, Барнаул, Новокузнецк, Кемерово, Абакан, Чита, Якутск, Южно-Сахалинск, Петропавловск-Камчатский и страны ближнего зарубежья: Белоруссия, Украина, Казахстан