Добро пожаловать на http://vipplan.ru

Випплан Большой Камень - это тысячи проектов домов в нашем каталоге!

Вы всегда сможете найти для себя проект дома вашей мечты! Даже если этого не случилось, мы готовы в любую минуту предложить проект индивидуального дома.

Забыли пароль?
Вы еще не регистрировались?

Перейдите по ссылке ниже на страницу регистрации.

Регистрация...

Внимание!!!

В проектную документацию могут быть внесены изменения любой сложности, в соответствии в Вашими пожеланиями!

Полезные статьи

Искусственный камень

Среди современных материалов, особого внимания заслуживает искусственный камень. Естественность и красота натурального камня очевидна. Но нужно реально оценивать свои возможности и присмотреться именно к искусственному камню, так как сам искуственный камень и стоимость производства работ с ним в Большом Камне значительно дешевле чем натуральный....

Виды бассейнов

В наше время, строительство бассейна на территории своего участка, не такая уж и роскошь. Выбор видов и стилей бассейна, на сегодняшний день, очень большой....

Проекты домов и коттеджей > Каталог проектов домов > Дом с мансардой, террасами и балконами Vg1127

Дом с мансардой, террасами и балконами Vg1127

Дом с мансардой, террасами и балконами
Зарегистрируйтесь

Проект № Vg1127


Техническое описание
Общая площадь: 94.24 м2
Жилая площадь: 52.95 м2
Высота здания: 8.21 м
Размеры дома: 10м×8м
Кол-во комнат: 4
Цокольный этаж: нет
Гараж: нет
Мансарда: есть

Kонструкция
Фундамент: Ленточный
Перекрытия: Деревянные балки
Материал стен: Дерево

Архитектурный раздел
Конструктивный раздел
Инженерный раздел
АР+КР - 44 000 (Со скидкой 20%)
АР+КР+ИР - 79 000 (Со скидкой 50%)
Проект индивидуального одноэтажного жилого дома с мансардой размерами здания 10,00 x 8,00 м. Наружная отделка здания – без отделки. Фундамент – ленточный из блоков ФБС. Наружные стены - оцилиндрованное бревно 240 мм. Внутренние стены - оцилиндрованное бревно 240 мм. Перегородки – гипсокартонные с ГКЛ. Пол первого этажа - пол погрунту. Межэтажное перекрытие — деревянные балки с теплошумоизоляцией в межбалочном пространстве. Крыша двускатная. Кровля – дранка. Окна - металлопластиковые, выполненные по индивидуальному заказу.
Генплан застройки участка / Паспорт проекта 7000 руб / 10000 руб
Инженерный раздел (полный) 35000 руб (50000 руб)
Смета на строительство 25000 руб
Теплотехнический расчет материалов стен Бесплатно
Стоимость проекта со незначительнми изменениями 52650 руб
Стоимость проекта со средними изменениями* 59700 руб
Стоимость проекта со значительными изменениями** 61600 руб

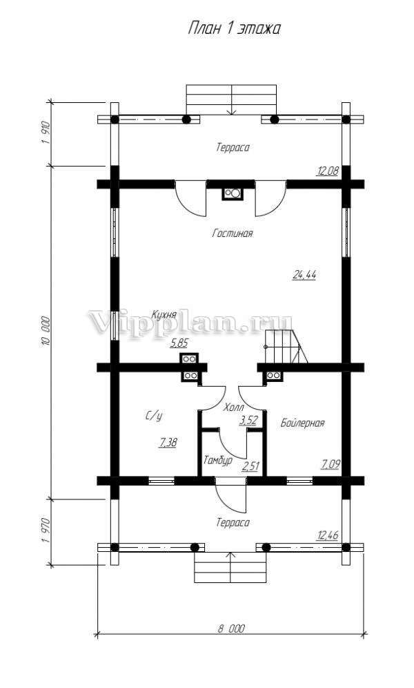
План первого этажа


Тамбур - 2,51 кв м
Холл - 3,52 кв м
Кухня - 5,85 кв м
Гостиная - 24,44 кв м
Бойлерная - 7,09 кв м
С/у - 7,38 кв м
Терраса - 12,08 кв м
Терраса - 12,46 кв м

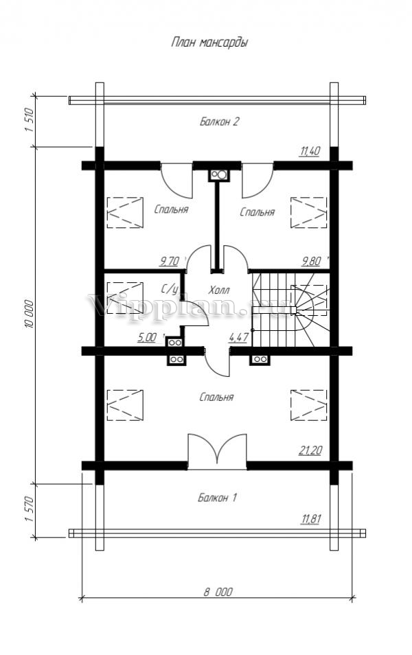
План мансардного этажа


Холл - 4,47 кв м
Спальня - 9,80 кв м
Спальня - 9,70 кв м
С/у - 5,00 кв м
Спальня - 21,20 кв м
Дом с мансардой, террасами и балконами Дом с мансардой, террасами и балконами Дом с мансардой, террасами и балконами Дом с мансардой, террасами и балконами

Модификации проектов

Внесение изменений и привязка к участку строительства

В любой из проектов от компании VIPplan - Большой Камень по вашему желанию могут быть внесены изменения в материалы стен, материалы наружной отделки дома, а также будет произведена адаптация проекта под конкретный регион строительства (с учетом грунтов региона, геологических особенностей вашего участка и местных климатических условий) - БЕСПЛАТНО !!! (кроме проектов со скидкой и проектов наших партнеров).

Любой из проектов, размещенных на сайте bolshoy-kamen.vipplan.ru мы можем выполнить из требуемых вам строительных материалов: ячеистый бетон (газобетон, пеноблок), керамоблок, кирпич, шлакоблок, бетонный блок, дерево (брус, клееный брус), каркасная технология (деревянный каркас, металлокаркас (ЛСТК)).

Фасад дома и его наружную отделку так же возможно выполнить с применением различных облицовочных материалов: структурной штукатурки, (с утеплителем и без), сайдингом (пластиковый или металлосайдинг), фиброплитами, кирпича.

 
6 Избранные
проекты

Доставка проектов по России: Москва (Московская область), Санкт-Петербург (Ленинградская область), Краснодар, Ростов-на-Дону, Ставрополь, Сочи, Волгоград, Новосибирск, Белгород, Брянск, Воронеж, Саратов, Хабаровск, Астрахань, Нальчик, Владикавказ, Екатеринбург, Тюмень, Самара, Нижний Новгород, Казань, Пермь, Уфа, Челябинск, Красноярск, Ханты-Мансийск, Иркутск, Курган, Оренбург, Омск, Томск, Барнаул, Новокузнецк, Кемерово, Абакан, Чита, Якутск, Южно-Сахалинск, Петропавловск-Камчатский и страны ближнего зарубежья: Белоруссия, Украина, Казахстан